前沿拓展:
今天的这110㎡的房子真的太适合改造了,全屋只有1根承重柱,比起老房子简直太友好~
屋主是一对年轻的海归小夫妻,刚结婚,和当下很多小夫妻想法一样,暂时没有要娃计划。
在属于二人世界的小空间里,两人的诉求是:要装下两人爱玩游戏、爱刷剧、爱做手工爱健身的所有兴趣;同时,也要装下女主人超多的衣服和鞋子~
从使用角度,空间的重新规划和收纳是本期的重点!
改造前
原始户型图
/主卧门口的黑色柱子就是承重柱
这个房子的原始户型也是方方正正,规矩的很,但对于改造型房屋还有一点好处:
整个110㎡的空间内,只有一根承重柱,其余都是石膏板墙体,这就给后期的结构改造和空间规划预留了很大空间。
改造后
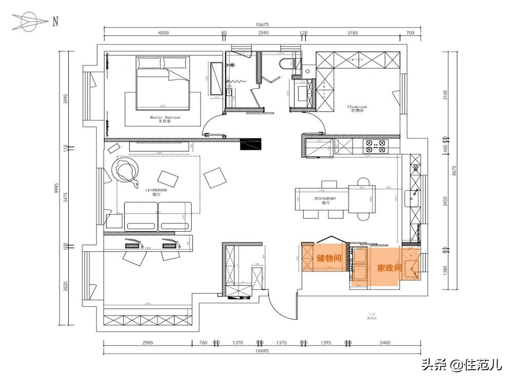
改造后户型图
/ 标黄的是重点改造部位
改造重点:
· 三室改两室,主卧不变,次卧变衣帽间
· 拆掉了小次卧的石膏墙体,用红砖半墙分割客厅和多功能室,打造一个可开可合的空间。
· 应屋主诉求,改变储藏室入口朝向,从玄关进门处改向餐厅进入,同时预留通顶的收纳空间
· 门口玄关处增加专门的鞋帽空间,营造“仪式感”
· 大面积增加收纳空间,定制柜和宜家索耐特打造收纳系统
设计师:清和一舍
面积:110㎡ (套内 92㎡)
花费:33万(硬装13w、定制柜8.5w、家具软装小件共计9w,除大家电费用)
位置:天津 东丽区
01
玄关里暗藏 鞋帽间
这里的玄关和以往不同,大多数小户型做玄关,一进门就是用通顶柜搭配开放格~
本次屋主特地选择了“步入式”的玄关,在正常的基础上,用定制柜和宜家的艾格特挂墙系统,打造了一个2.5㎡左右的围合式鞋帽间。
不仅轻松装下了屋主两人近百双鞋子,还营造出了“搭配”的仪式感,省钱还实用!
鞋帽间靠门墙的0.8m处,是控制房间开关的强弱电箱,设计师专门预留了开口,同时将柜体进深加宽到0.4m,可以容纳下一些特殊造型的收纳。
侧面用宜家的开放格挂墙系统,高度随意调,鞋子也能看得见,方便搭配,即拿即用!
为了更好的区分空间,屋主网购了黑色花纹的复古小瓷砖,通铺玄关,奠定了家给人“复古”的第一印象~
从玄关望向主卧卫生间
02
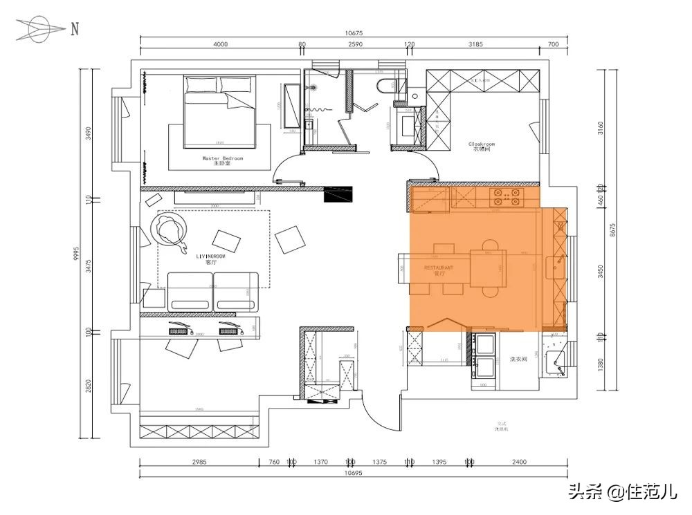
加个岛台,餐厨一体化
玄关往前走的右手边,就是餐厨空间。
其实,改造后的房子除了卧室,基本上属于“全开放式”状态,一方面方便采光,另一方面也方便两人随时互动交流,餐厨空间也不例外。
以定制的人造石岛台为中心,往外延申的餐桌可以容纳至少5人同时干饭,往内可以做厨房操作台的延申,也可以用作吧台,实用也方便。
现在有一些小户型也喜欢用岛台,显品质还能一物多用~
不过价钱有点小贵,屋主这个是1m(长)x0.8m(宽)x1m(高)的,人造石材质花了10241元~
实木材质的餐桌、餐椅,搭配网红飞碟吊灯,温馨又好看。
围绕餐厅和厨房的两面墙,屋主定制了进口爱格板的吊柜和地柜,是花费最高的一项,共计8.5w元。
为了搭配复古风,细节全藏在柜门上了!细看,柜门是带有“口”字造型的极简白和黄铜材质的圆形把手,轻巧又高质。
吊柜的下方和排烟管的包管处墙面,屋主选用了150x100cm的小白砖~
此外,厨房还和客厅一样,做了石膏板吊顶,通铺了人字拼的实木多层地板,显大还有层次。
其实很少有人在厨房用实木多层地板,主要怕厨房有水、脏还不好打理,但屋主两人饮食偏淡,少油烟,这些问题就不存在了!
03
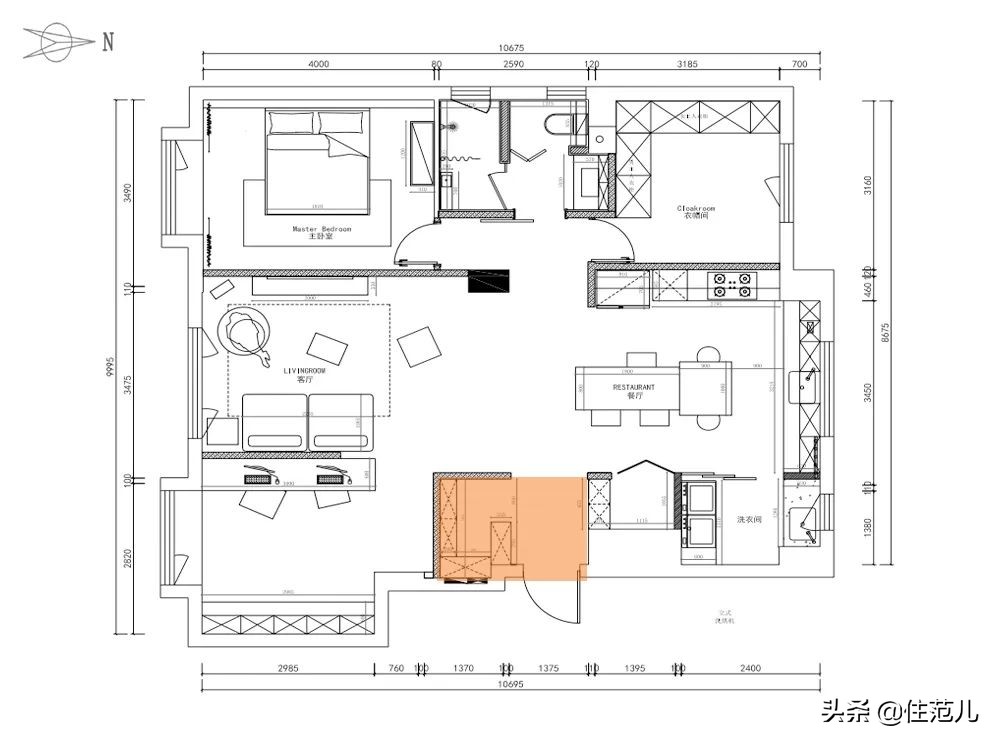
独立的储物间、家政间
还是餐厨空间,换个方向往身后看的一堵墙,就是独立的储物间和家政间。
靠玄关一侧的是储物间,原有的储物间门朝向玄关一侧,改造后需要从厨房进入。
乍一看动线上稍微有点绕,但改造后的储物间按照屋主的习惯,主要辅助厨房不够收纳的空间和其他杂物。
储物间的门看起来是实木的,实际上是铝合金材质做成百叶门造型,刷成乳白色的漆,搭配复古刚刚好。
喜欢这种造型的也可以这么做,比买实木门最少省1000~
储物间的隔壁,是单独的家政间,大约有3.2㎡,用超白长虹玻璃吊轨推拉门与餐厅隔开。
家政间里面本就有排水系统,洗手池和洗衣机、烘干机用水都很方便,也没有多余的设计。
考虑到未来打算要娃或者家里人多,卫生间不够用时,也可随时改造成第二个卫生间。
因为是高频用水区,地面延用了复古小花砖,也做了半墙的小白砖设计,有一定的防水效果。
从厨房望向家政间
04
半墙之隔的客厅、书房
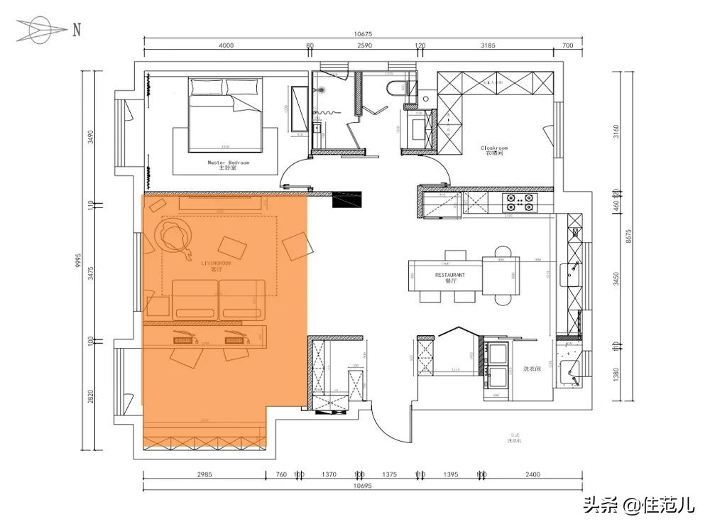
玄关往前走的左手边,是客厅和书房。
这也是整个案例里最有趣的部分,客厅和书房仅半墙之隔,看似独立又完全开放~
其实,原始户型中,这面墙是完全封闭的,隔着的是第二个次卧(看下图结构)。
但家里长期居住就小夫妻两人,丈夫还经常出差,房间多了也没用。设计师打掉了原有的石膏墙体,用红砖筑半墙,同时在底部预留了开关插座,方便两人打游戏、健身机使用~
左 :改造前墙体(黄色标注) 右:改造后 (斜纹标注)
砌筑好的青砖墙刷上乳胶漆
从客厅望向书房
打掉原来的小次卧后,这里变成了半开放的书房。
屋主网购了两个长1.5m的黑胡桃的实木细脚桌,她和老公一人一张,同时工作,同时游戏~
书房的背后是宜家挂墙系统搭建的展示区。
平常,女屋主会在这里做手工,老公的荣誉奖章和学习书籍就在旁边,很有安全感~
半墙的另一侧,是专门的会客区。
会客区做了石膏板吊顶,用了无主灯+氛围灯照明。
除了黑色细脚沙发来自于宜家,其他全部网购。
沙发坐面全皮材质很显质感,扶手和背后是人造皮的,背后虽然很丑,但挨着墙,几乎看不见。
电视机是两人的最爱,打游戏必不可少~
沙发旁边是一个实木搭配玻璃材质的小边几,只能放些随手看的书,不实用中带点儿复古的小倔劲儿~
05
主卧、衣帽间各占一间
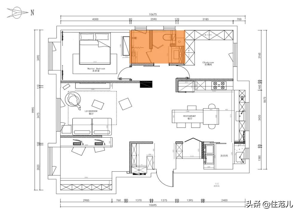
走廊尽头左右两个房间,是原来的主卧和次卧,主卧不变,次卧成了两人半开放式的衣帽间。
因为小夫妻俩大多数的时间都在客厅、书房等公共空间,主卧并没有做过多的设计,进门就是床,旁边放一个实木五角斗柜做内衣、袜子的收纳。
唯一特别的是,屋主把床头柜做成了矮墙,0.9m的高度坐在床上靠着刚刚好,10cm的厚度可以摆画,也可以当成床头柜放一些随手的小物,很好用!
另外,床头左右两侧也提前预留了一盏吊灯和阅读灯。
主卧对门的衣帽间,一半做了定制柜,一半做了宜家挂墙系统,常穿的挂起来,换季的藏起来还不落灰。
06
三分离的卫生间
最后一个是卫生间,在走廊尽头。
进入卫生间,要经过两个到顶的长虹玻璃推拉门,外面的是暗藏的超白玻璃推拉门,里面的是加厚的黑框玻璃推拉门,两层能保证透光不透人。
为了呼应整体的复古风格,门洞特地用石膏板+轻钢龙骨做成了用拱形门,足足有2.3m高。
视角:从走廊望向卫生间
进卫生间门左手边,是独立的淋浴区(湿区),直走是马桶间,右手边是单独的镜子和洗手池。
淋浴区里延续了小白砖和莫兰迪绿的色系,复古不突兀,简易的PVC拉帘隔开淋浴区和独立的小洗手台。
拉帘下方还贴心地嵌入了挡水条,防止水外流。
直走是独立的马桶间,
屋主家里安装的是地排式的壁挂马桶,马桶距离地面30cm,为扫地机器人预留出行走空间,不留卫生死角。
马桶排水箱的侧面就是公共排水管,80cm的半墙刚好通通遮住,上面还能放手机~
(如厕拿手机不好哦hhhh)
Tips: 壁挂马桶分墙排式和地排式,墙排式必须是承重墙,否则承接不住重量。
马桶间外面是定制的独立洗手池,洗手池下方同样预留高度,方便清理。
上面的化妆镜是屋主网购的,一排顶灯很有剧院般的效果,很好用!
屋主好物清单
卫生间 镜前灯 腾海灯具旗舰店 289元(网购)
卫生间 干区龙头/水盆 Kraus旗舰店 569元 /459元(网购)
卫生间 墙排马桶 吉博力旗舰店 7369元(网购)
卫生间 玻璃推拉门 优居美家门业 11023元(网购)
厨房 水槽/龙头 Kraus旗舰店 1942元(网购)
全屋 筒灯/射灯/壁灯 小左照明 1649元 (网购)
餐厅、主卧 吊灯 新罗灯饰工厂 789元(网购)
餐厅 餐桌 颂誉旗舰店 2535元(网购)
餐厅 餐椅 质朴家具 340元(网购)
客厅 书桌 丸子物语家具 3538元(网购)
客厅 窗帘 一室旗舰店 383元(网购)
客厅 黑色沙发 宜家 5980元 (线下)
卧室 床头柜/床/边几/五斗柜 木邻 共计9675元(网购)
储物间 百叶折叠门 上海苏叶装饰材料 2936元( 网购)
衣帽间、书房、鞋帽间 宜家艾格特 共计5445元 (线下)
好了,这就是本期的设计师案例了,喜欢的就动动小手按个“赞”吧~
拓展知识:
标题:长虹洗衣机不排水维修(长虹洗衣机不排水怎么回事)
地址:http://www.cdaudi4s.com/kongdiao/weixiuzixun/8797.html


