前沿拓展:
前言:
作为一个伪乐高爱好者,最喜欢干的事就是DIY了,而我自己感觉最有趣的DIY就是装修时把家里的动线做了一个重新的设计,把家中的动线和布局都重新做了规划。(特别说明,所拆墙体都非承重墙,也非剪力墙)
壹、个人需求:要想让家中的布局更加的适合自己,并且设计出合适的动线,那么最重要的就是要先明确个人的需求。
目前我家的情况是刚刚有了孩子,但是我们打算自己带孩子,家长只是偶尔过来帮忙。并且我们特别喜欢在家中招待朋友一起做饭或者看电影聊天,所以对于我们来说一个开放式的公共空间是十分有用的。
1、开放式厨房,可以满足多个人在厨房忙碌互不干扰,并且要满足做饭的人与客厅餐厅的人也可以直接沟通。
2、至少1.8m的餐桌,作为一个交流娱乐的中心空间,把中心空间从电视和传统的客厅中剥离出来。
3、不布置电视,直接用投影来替代电视的功能,投影仅仅是用于看电影或者是各种球赛。
4、虽然家长不会常住,但是也是需要预设一个榻榻米用于儿童房或者是家长短期居住使用。
5、很不喜欢家中有太多的门,导致视线上很凌乱,所以想办法减少家中门的数量,做隐形门来解决。
贰、户型改变:1、原始户型图
【砸墙】
1、砸掉了厨房两面墙,外加和厨房相连储物间的一面墙,让厨房可以作为一个开放式厨房使用。
2、把进门处的洗手间墙砸了向内推10cm让出部分空间,从而创造了鞋柜的空间。
3、把次卧的墙砸了,让次卧和之前的储物架形成一个大开放式的空间,作为客厅和餐厅。并且这样可以把客餐厅以及厨房整个都联通起来形成整连通的公共区域。
4、主卧门旁边的墙砸出一个门洞,改动主卧大门位置,预留出主卧衣柜的位置。
5、砸掉阳台与主卧之间的墙让卧室的面积更加的开阔,因为阳台有烘干机所以不需要晾衣服。
6、阳台设备间的墙砸掉,然后封窗让整个主卧的户型更加方正。
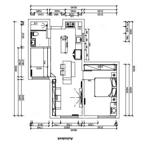
2、改后户型图
【改动后的变化】
1、以前很小的一个封闭厨房,变成了一个大的开放式厨房动线合理,收纳力很强。
2、客厅餐厅整体来说更加规整并且面积扩大,同时缩小了次卧面积。
3、主卧和阳台一体后空间利用率明显增加,不但多找了一部分设备间面积,同时整体的空间不会被墙分割。
4、洗手间整体是长方形空间,可以通过淋浴房实现干湿分离。
5、除了两个卧室和一个洗手间三个私密空间外,其他客餐厨三个公共空间形成了一体化的通透空间。
【建墙】
1、整面通过的8m长的书架,隔出了次卧以及洗手间的位置,同时次卧顶面书架不到顶让次卧的小空间更加通透。
2、洗手间墙体后退,新建了10cm的薄墙用于防水。
3、主卧原来的门处建薄墙,形成一个壁笼用来挂黑板或者展示挂毯。
【移位】
1、因为要实现干湿分离,所以马桶进行了移位目前使用一年多了没有发生堵塞问题。
2、强电箱在需要砸的墙上所以强电箱移位同时增加了回路,一般基础的回路有(灯、普通插座、厨房插座、卫生间、空调多个、冰箱)如果不够最好前期增加。
3、弱电本来在老户型的客厅,进行户型改造后客厅改造成次卧,所以弱电也进行了移位。
叁、动线规划:1、公共空间动线:
我们家的公共空间主要是指厨房,餐厅,客厅三部分空间,这三部分空间目前是连为一体的,也没有特别复杂的布置。就是一个简单的通透大空间,同时利用书架把整个空间的风格都统一了起来。
2、厨房使用动线:
1-2人使用:
1-2人用餐:由一个人做饭,洗—切—炒形成一个完整动线。相应的两人餐具在集成灶下边可以由一个人直接取用。
3-4人使用:
3-4人用餐:由两个人做饭,一人负责洗—切,一人负责炒。同时四人份的餐具在中岛靠近集成灶部分,可以由炒的人直接装盘或者第三个人装盘也可以互不影响。
多人使用:
大于4人用餐:当大于四人用餐时,可以由更多的人参与做饭。如图最多可六人同时参与而不相互干扰,一人炒,一人洗切,一人烤,一人凉菜,一人摆餐具,一人煮(有便携电磁炉中岛边上有插座)。这样可以让大家都参与进来,在做饭中沟通交流而不是各自玩手机。
3、洗手间使用动线:
我洗手间设计的动线,主要就是指起夜时的感应灯布置,保证起夜时不论是从次卧还是主卧出发都能保证一路有灯光,不会因为黑暗绊倒。
设备:网关+墙壁开关+人体传感器
在客厅设置了一个人体传感器,设置为晚上十一点到早上六点期间检测到有人移动就开灯,10分钟无人移动后自动熄灯。
在洗手间进门处设计一个人体传感器,设置为检测到有人移动就开灯,白天6:00-23:00,半小时无人移动自动关灯(防止洗澡时灯光关闭),晚上23:00-第二天6:00,10分钟无人移动后自动熄灯。(这样可以防止迷迷糊糊忘记关灯)
注:人体感应器的感应部分是那个反光部分,所以可以通过调整反光位置的角度实现感应的范围。
主卧路线:床尾夜灯-走廊灯(人体传感器)-洗手间灯(人体传感器)
次卧路线:走廊灯(门窗感应器)-洗手间灯(人体传感器)
4、衣物清洗收纳动线:
家里的脏衣篮、洗衣机、烘干机以及衣柜都在主卧,所以也不会存在动线过长或者是重复的情况。
一般来说洗衣物存在以下动线:暂存-洗-晾(烘)-存,这样一个动线。所以最好这些功能都能在一个空间实现。
5、家中杂物拿取动线:
一般来说家中的杂物最好都放在公共区域,或者是公共区域的必经之路上,这样方便日常拿取。
目前来说我们家的杂物主要集中在三个区域,一是玄关鞋柜,二是榻榻米,三是客厅电视柜。
(1)玄关鞋柜:
玄关鞋柜的中间开放格主要用于放置出门的随手件或者进门常用物品,比如钥匙、公交卡、零钱以及剪刀等等。
(2)榻榻米:
在榻榻米床尾的衣柜我布置了9个抽屉,分别放置9类常用的杂物,用的久了完全可以快速的找的自己需要的物品(也可以打上小标签)。
(3)电视柜:
这个地方我主要用于收纳孩子的玩具,以及各种电源线等杂物。这里的特点就是方便随手拿取客厅使用的物品,但是因为我设计的单个空间较大所以不适合放小物品。
小彩蛋:之前说了我是伪乐高迷,所以就来放点乐高类玩具的图片好了。我会买国产原创积木,但是绝对不会买国产抄袭的。
1、外滩陆家嘴:
这是我以上海天际线为基础,想把外滩和陆家嘴的建筑尽可能的在一个书架格子中还原,这是我目前搞了最久的一个moc了,都是用的散件自己想办法尽可能还原。但是毕竟不是专业人士所以细节和比例肯定有不少问题,而且很多零件不好买,所以还未完工。
2、中国风山坡:
这款积木我是用森宝唐人街和星堡中华街组合而成,然后自己用散件补充了一些细节,并做出了高低落差,也是还没完工正在改进。
3、中华街:
开智中华街组成的小场景,之前我在文章中也写过这款玩具,还是很不错的一套中华街,不过好像基本不卖了。
4、乐高大众T1
我的第一款乐高,没啥需要多说的,已经是一个比较老的经典款乐高了。
5、乐高土星五号
一款价格不贵,体积又大的乐高玩具,放在家里十分吸引人的眼球,而且整体造型比较细长方便收纳,同时还可以分为三段来收纳展示。可以说是一款性价比很高的乐高。
6、权利的游戏钟
分别买的第三方权利的游戏人偶、积木钟表造型,再加上我自己的散件经过改造和细节的增加,最后完成了这个时钟的制作。
8、遥控器盒
就是用国产散件做的一个比较实用的遥控器盒子,正好可以放下我的四个遥控器和需要替换的电池。
9、乐高舞龙
很经典的一款中国风乐高玩具,而且还是可以动的,设计的十分巧妙个人感觉很值这个价格。
不论DIY还是装修的改造,一定要在一开始就规划好自己需求或者是计划。否则在过程中再改变需求不但会使问题变的更复杂,同时会出现很多考虑不周的缺陷。
接下来我应该会系统性的写写家装过程中常用的所有尺寸,希望可以让大家在自己装修中有个参考,谢谢支持。
拓展知识:
标题:森宝空调维修中心(修理空调售后中心)
地址:http://www.cdaudi4s.com/kongdiao/weixiuzixun/9737.html


